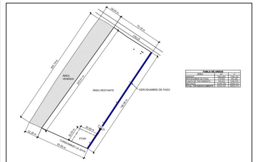
Terreno en San Miguel petapa de 2 manzanas 65 dolares v ², Granjas Geronas, Á
Terreno en San Miguel petapa de 2 manzanas
65 dolares v ², Granjas Geronas, Área industrial , Acceso cualquier hora sin restricción, precio fijo, no Comisionistas ni agentes de bienes y raíces, whatsapp 30043704


